Descrizione

AREZZO: Via F. Redi - zona Cappuccini –
Proponiamo in vendita in un complesso residenziale verdeggiante di nuova costruzione e di imminente realizzazione (in classe energetica A4), ultime due disponibilità con ingresso indipendente.
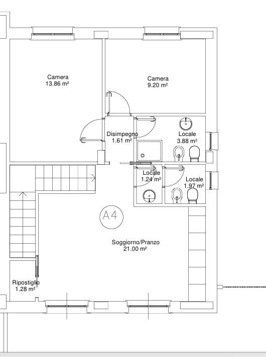
L’immobile al primo piano di mq 75 circa è composto da luminoso soggiorno con ampio balcone di 14 mq circa, 1 camera matrimoniale e 1 camera di media dimensione, 2 bagni . Completa la proprietà posto auto e GARAGE . Richiesta euro 290.000,00.
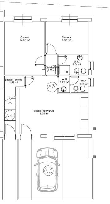
L’immobile al piano terra di mq 75 circa è composto da luminoso soggiorno, 1 camera matrimoniale , 1 camera di media dimensione, 2 bagni , GIARDINO di mq 150 circa , oltre 2 posti auto. Richiesta euro 285.000,00.
Finiture di alto livello, riscaldamento a pavimento, pannelli solari, fotovoltaico, possibilità di personalizzazioni degli interni. Polizze fideiussorie di legge.
Foto di rendering solo allo scopo immaginario e personalizzabile.
Maggiori info in agenzia


Caratteristiche principali

Stato Immobile
Nuovo
Grado
Medio
Giardino
Privato
Arredi
Non Arredato
Tipo Soggiorno
Soggiorno
Tipo Cucina
Angolo Cottura
Riscaldamento
Autonomo
Infissi
PVC Triplo Vetro
Serramenti
Nuovo
Pavim. Giorno
Ceramica
Pavim. Notte
Ceramica
Pavim. Cucina
Ceramica
Pavim. Bagno
Ceramica
Accessori: Doppi Vetri

Mappa

VIa REDI , Arezzo (AR)

Richiedi informazioni

Invia
Cookie preference