Descrizione

**Vendita di Bifamiliare a Castiglion Fiorentino**

Castiglion Fiorentino in zona residenziale proponiamo in vendita questa splendida bifamiliare, con una superficie di 110 mq circa per ogni unità.
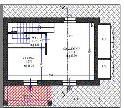
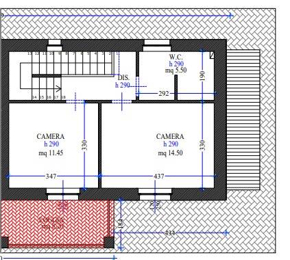
Gli immobili sono composti al piano terra da una luminosa open space che accoglie cucina e soggiorno, da un disimpegno, un bagno, un porticato e un giardino privato di circa 500 mq. Al piano notte invece troviamo due camere , un secondo bagno ed una terrazza.
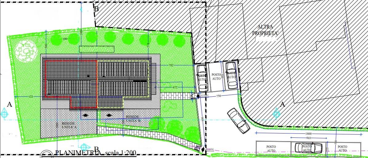
Le due proprietà hanno rispettivamente un resede e tre posti auto e un resede e due posti auto.
L’immobile è la scelta perfetta per chi cerca comfort e modernità. Le due unità sono in vendita a prezzi competitivi: una a €. 295.000,00 e l'altra a €. 275.000, 00 entrambe trattabili. Immersa in un contesto tranquillo, questa nuova costruzione è stata realizzata in classe energetica A++++, garantendo un elevato risparmio energetico grazie alle batterie da accumulo da 10 kw, l’impianto fotovoltaico da 6kw, i pannelli solari con boiler da 350 lt e la pompa di calore.
L’immobile dispone inoltre di aria condizionata , predisposizione impianto di allarme, riscaldamento a pavimento, impianto elettrico domotico ed infissi con anta e ribalta a bassa emissione.
Maggiori info in agenzia


Caratteristiche principali

Stato Immobile
Ristrutturato
Grado
Medio
Posizione
Periferia
Panorama
Vista Aperta
Lati Liberi
3
Giardino
Privato
Arredi
Non Arredato
Tipo Soggiorno
Soggiorno
Tipo Cucina
A Vista
Riscaldamento
Autonomo
Tipo Riscaldam.
Pompa di Calore
Tipo Impianto
Pavimento
Fonte Energetica
Fotovoltaico
Acqua Calda
Boiler elettrico annuale
Raffrescamento
Split
Infissi
PVC Triplo Vetro
Serramenti
Nuovo
Persiana
Persiana PVC
Pavim. Giorno
Ceramica
Pavim. Notte
Ceramica
Pavim. Cucina
Ceramica
Pavim. Bagno
Ceramica
Accessori: Antifurto, Aria Condizionata, Cancello Elettrico, Doppi Vetri, Impianto Domotica, Impianto Fotovoltaico, Lavanderia, Pannelli Solari, Porta Blindata, Tripli Vetri, Zanzariere

Mappa

Via Alessandro Codivilla , Castiglion Fiorentino (AR)

Richiedi informazioni

Invia
Cookie preference