Descrizione

Foiano della Chiana

in zona residenziale, fuori dalle mura, vicino al centro storico (raggiungibile a piedi) e vicino a tutti i servizi principali , proponiamo in vendita Appartamento posto al 3 piano con ascensore.
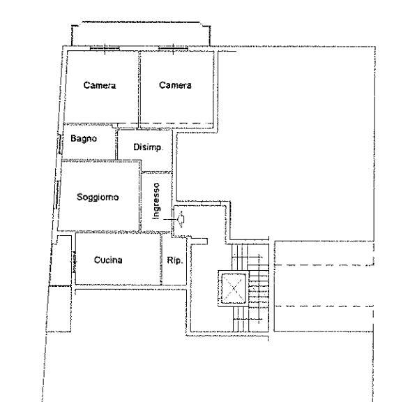
L’immobile e stato parzialmente ristrutturato recentemente ed è composto da da soggiorno, cucina abitabile con balcone , ripostiglio, disimpegno, 2 camere matrimoniali con terrazzo e bagno finestrato.
Maggiori info in agenzia


Caratteristiche principali

Stato Immobile
Buono
Grado
Economico
Posizione
Centro
Panorama
Vista Aperta
Lati Liberi
2
Giardino
No
Arredi
Non Arredato
Tipo Soggiorno
Soggiorno
Tipo Cucina
Abitabile
Riscaldamento
Autonomo
Tipo Riscaldam.
Caldaia
Tipo Impianto
Radiatori
Fonte Energetica
Metano
Raffrescamento
Split
Infissi
Legno
Serramenti
Buono
Persiana
Tapparella PVC
Pavim. Giorno
Laminato
Pavim. Notte
Ceramica
Pavim. Cucina
Ceramica
Pavim. Bagno
Ceramica
Accessori: Aria Condizionata, Ascensore, Doppi Vetri, Porta Blindata, Ripostiglio

Mappa

gioco del pallone , Foiano della Chiana (AR)

Richiedi informazioni

Invia
Cookie preference