Descrizione

MARCIANO DELLA CHIANA
nella frazione di Cesa in zona centrale di transito, proponiamo in vendita terratetto con entrata indipendente disposto su 3 piani.
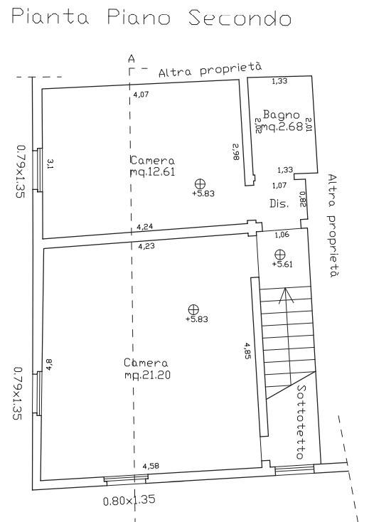
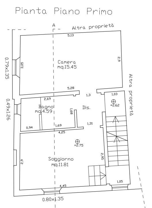
L'immobile è composto al piano terra da soggiorno, cucina e cantina, salendo le scale interne arriviamo al primo piano dove troviamo un ampia camera matrimoniale, un bagno ed una seconda stanza che può essere utilizzata o come ulteriore soggiorno o come camera, salendo al secondo piano invece troviamo le altre due camere ed un ulteriore bagno.
L''immobile presenta degli ottimi spazi .
Completa la proprietà un terreno staccato dall'abitazione principale dove esiste una volumetria di circa 15 mq utilizzabili.
maggiori info in agenzia


Caratteristiche principali

Stato Immobile
Buono
Grado
Economico
Posizione
Centro
Lati Liberi
2
Giardino
No
Riscaldamento
Autonomo
Tipo Riscaldam.
Caldaia
Tipo Impianto
Radiatori
Fonte Energetica
Metano
Infissi
Legno
Persiana
Persiana Legno
Pavim. Giorno
Ceramica
Pavim. Notte
Ceramica
Pavim. Cucina
Ceramica
Pavim. Bagno
Ceramica
Accessori: Ripostiglio

Mappa

via cassia , Marciano della Chiana (AR)

Richiedi informazioni

Invia
Cookie preference